Transform your backyard with our versatile blank canvasses, perfect for a complete overhaul. These units are designed to be tiled, painted, or stone-clad to match your unique style. With strong HardieBoard walls, they offer durability and flexibility, allowing any cladding to seamlessly integrate into your space. The unfinished design provides a customizable foundation, ensuring your outdoor area reflects your personal aesthetic. Create the perfect backdrop for your backyard.
HPC Brochure
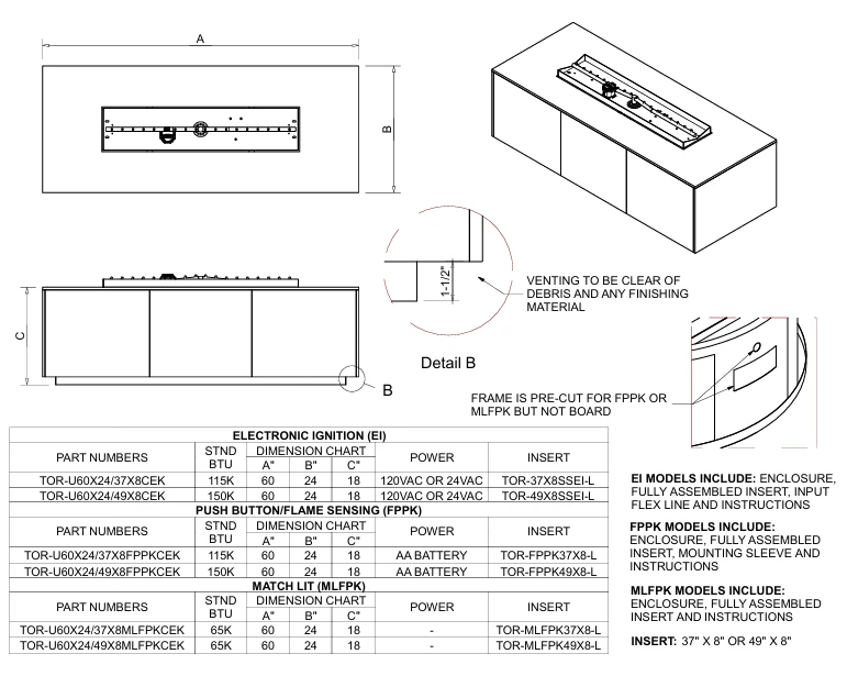
Features:
- Up to 115,000 BTUs
- Interlink Torpedo burner
- Push summary ignition
- Pre-cut ventilation
- Pre-cut insert space
- Provides flexibility to finish with stone, veneer, stucco, or brick















Reviews
There are no reviews yet.