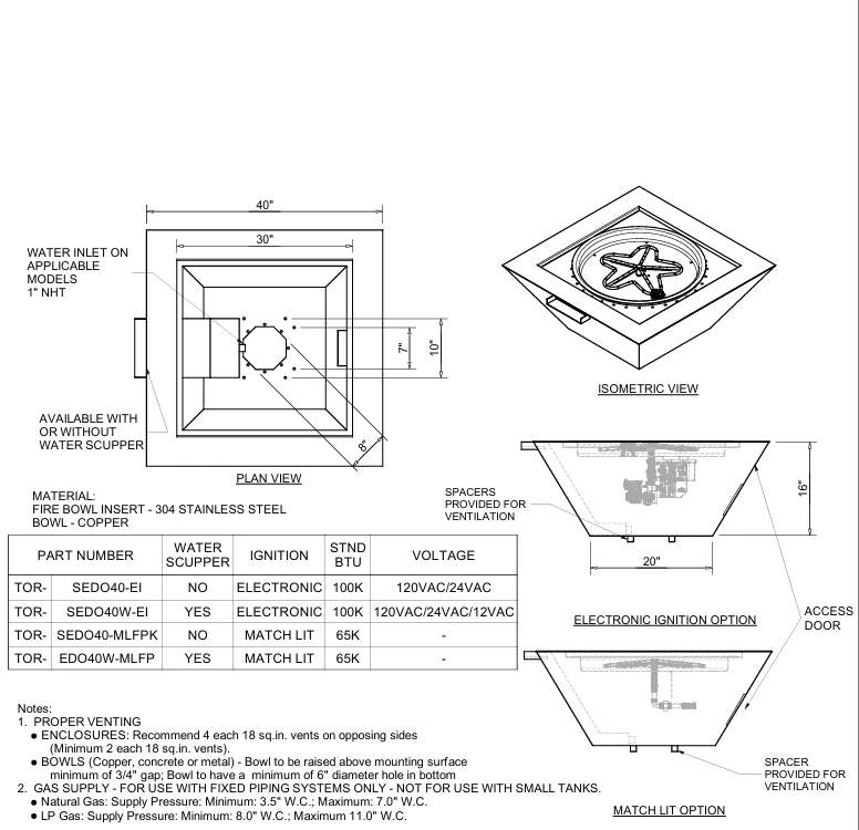
The beautiful Sedona Hand Hammered, Oiled Copper Fire Bowl and Copper Fire and Water Bowl are designed to make a visual impact on any build. These features offer built-in ventilation or spacers and access doors for convenient maintenance, ensuring ease of use and longevity. With a heat output of up to 50,000 BTUs, they are perfect for poolside applications, featuring water scuppers to enhance your outdoor space. Add elegance and functionality to your build with these stunning fire and water bowls.
HPC Brochure
Features:
- Up to 50,000 BTUs
- Matchlight Ignition
- Built-in ventilation or spacers
- Access doors for convenient maintenance
- Choose between water scuppers or standard fire bowl
- Hand hammered, oiled copper. No two fire bowls are the same



















Reviews
There are no reviews yet.