The GV300 from the Lodge Collection wood burning stoves set a new standard in home heating with advanced Thermal Fin Technology (TFT), a cast-iron heat exchanger that ensures optimal warmth. These stoves feature expansive, durable ceramic glass for clear views of the fire and efficient heat transfer. With versatile styling options, the Lodge Collection stoves seamlessly enhance any home décor, combining elegance with efficiency for superior performance and comfort.
Iron Strike Wood Stove Brochure
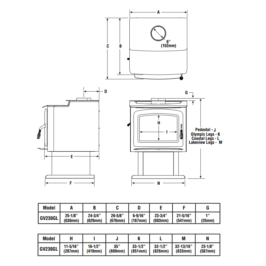
See all available accessories here
Features
- Spacious 3.0 cubic foot firebox interior accepts up to 21” logs.
- 100,000 BTU’s/hour and heats up to 2,000-3,000 square feet.
- Thermal Fin heat exchanger creates 32% more surface area than a standard stove design resulting in more heat entering the room.
- Air-boost timer automatically adjusts the air intake control making startup and reloading easier.
- Tall opening provides an expansive view of the burning fire.
- Ceramic glass for extra strength and optimum heat transfer.
- Unique, integral air wash system keeps the glass clean and clear for a wide-open view of the fire.
- Precision-cut, heavy-gauge steel provides dependable, long-lasting operation.
- High-density firebrick retains heat longer, resulting in increased efficiency.
- One-touch control ensures easy operation and comfort.
- EPA-certified



















Reviews
There are no reviews yet.