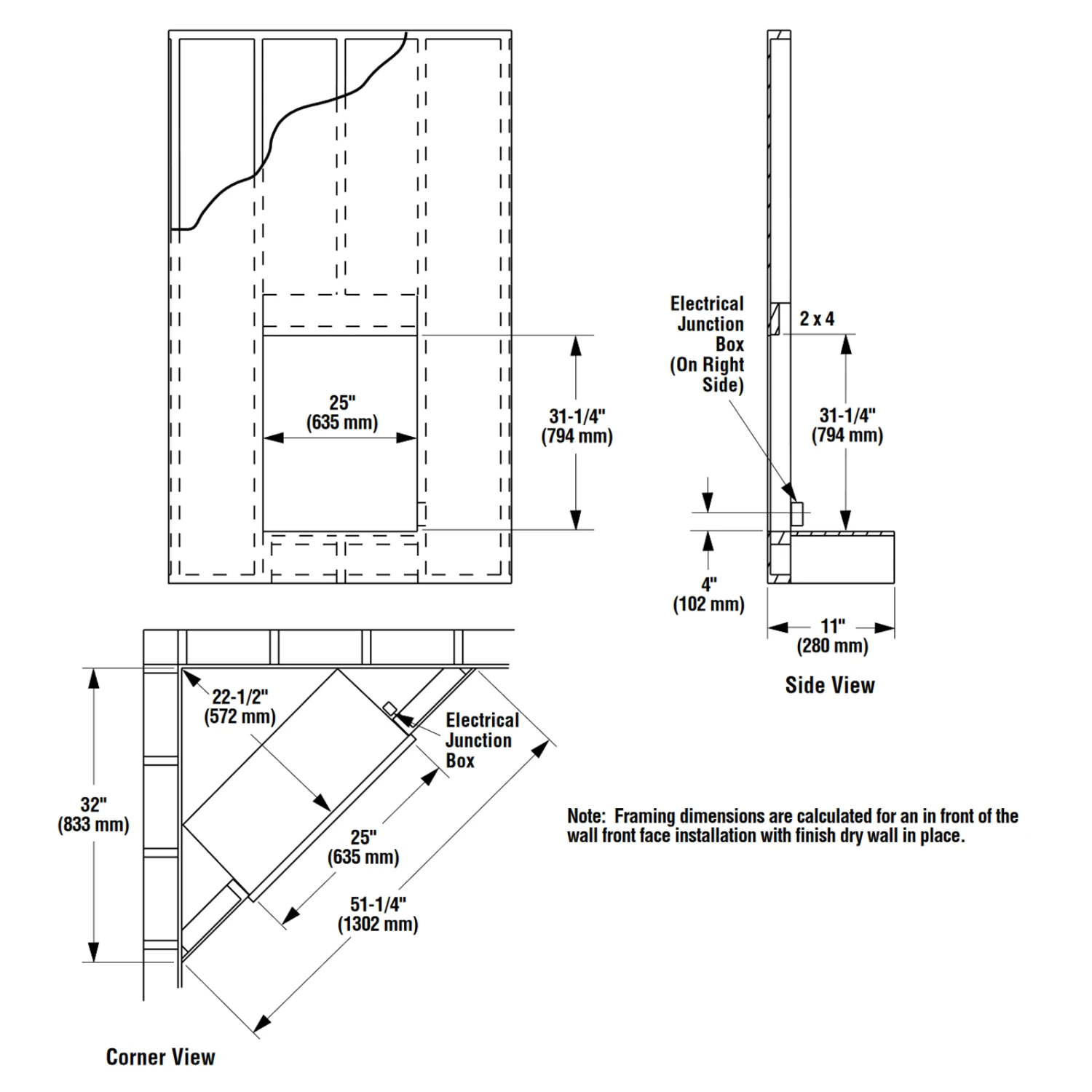
The ERT3027 electric fireplaces offer individuals who love the beauty and warmth of a true fire, but don’t have the extra space for a fireplace installation. The ERT3027 electric fireplace is Superior’s answer to automatic home comfort with simple plug-and-play set up and easy installation capabilities.
Superior ERT3027 Brochure
Features
- Tall 28″ portrait style opening for an exceptional view of the fire
- Unique multi-colored flame presentation for greater realism
- LED lights provide enegy efficiency and long life
- Bronze tinted flush-panel glass front adds a touch of elegance
- Easy access manual controls to adjust flame height and ember intensity
- Standard 5,000-BTU’s thermostatically controlled heater delivers relaxing heat on demand
- Plug-in ready with standard three pronged 110V grounded power cord for easy installation
- Charred split oak log set with integrated grate and glowing ember bed
- Full function remote control (heat, flames, embers)
- 1 year limited warranty















Reviews
There are no reviews yet.