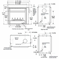
The bedroom, bath, study or den. Virtually anywhere you can imagine a fireplace, the DRT35ST gas fireplace fits right in without taking up additional floor space. Its compact design is the smallest footprint in the industry, yet it offers the largest viewing area and flame presentation for its size. Enjoy the beauty of fire from multiple rooms.
Superior DRT35ST Brochure
Features
- See all available accessories here
- Up to 30,000 BTUs
- Combo top/rear flue configuration for all models
- Energy saving electronic ignition
- Outstanding heating efficiency for increased comfort and lower operating costs
- Standard tempered glass and a protective screen
- Detailed ceramic fiber “aged oak” log set with 1/2″ heavy duty grate
- Black painted interior (optional ceramic fiber liner available)
- Durable textured powder coat finish
- Optional remote control available for all models
- 20 year limited warranty
















Reviews
There are no reviews yet.