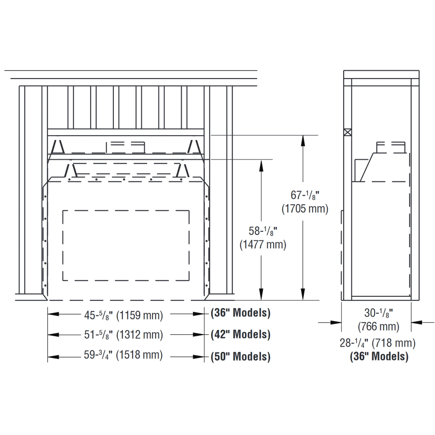
“Impressive” is the only way to describe these massive wood burners. Designed for large custom applications, the WRT6042 fireplace features a 30″ tall opening and beautiful Mosaic Masonry brick that represents a true masonry fireplace appearance. When only an authentic masonry fireplace will do, the WRT6042 has the industry’s best offering at a fraction of the cost of site built.
Superior WRT6042 Brochure
Features
- See all available accessories here
- Massive smoke dome with no visible smoke shelf for reliable operation
- Fully insulated firebox for increased performance in colder climates
- Mosaic Masonry brick available in a variety of patterns and colors with integrated ash lip
- Heavy duty cast iron log grate with rugged forged andirons
- Easy access damper control
- Includes mesh fire screens
- Dual (left hand/right hand) outside air kits available for maximum performance
- Durable textured powder coat finish
- Uses IHP 12 DM (1700‚º) double wall air cooled wood burning chimney
- Uses IHP 12 HT (2100‚º) heavy gauge double wall air cooled wood burning chimney, recommended for cold climates (required for Canada)
- 20 year limited warranty

































Reviews
There are no reviews yet.